Rif: MORANDI/ALESI
MILANO
MILANO - zona Rovereto
TRILOCALE IN BUONE CONDIZIONI - VIA MORANDI 19, MILANO
In stabile ben tenuto con ascensore, proponiamo al 3° piano un luminoso trilocale in buone condizioni interne, situato nel cuore del vivace quartiere NoLo, una delle zone più richieste di Milano!
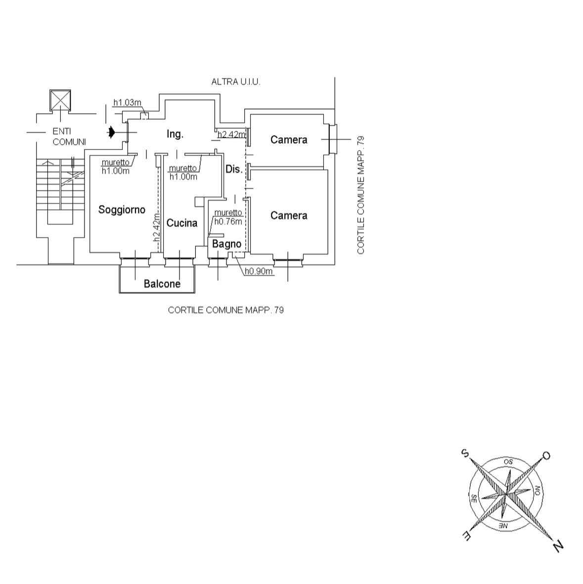
L'appartamento è composto da:
-Ingresso
-Soggiorno luminoso
-Cucina abitabile
-Due camere da letto spaziose
-Bagno finestrato
-Balcone
Soluzione ideale per coppie, giovani famiglie o come investimento!
Zona e collegamenti:
L'immobile si trova in Via Morandi 19, nel cuore di Nolo, quartiere dinamico e in continua crescita, ricco di locali, negozi e servizi di ogni tipo.
Ottimi i collegamenti con i mezzi pubblici:
-Metro M1 – Pasteur a pochi minuti a piedi
-Metro M2 – Loreto facilmente raggiungibile
-Linee bus 56, 62 e tram 1, 5, 33 nelle immediate vicinanze
Grazie alla posizione strategica, è possibile raggiungere il centro di Milano in pochi minuti.
Punti di forza:
-Zona NoLo, tra le più trendy e vivaci della città
-Piano alto con ascensore
-Cucina abitabile e balcone
-Ottimo stato di manutenzione
Un appartamento che unisce comfort, posizione e praticità in una delle aree più interessanti di Milano!
Per maggiori info e/o visionare l'immobile 327. 1814164 - Immobiliare Alesi.
In stabile ben tenuto con ascensore, proponiamo al 3° piano un luminoso trilocale in buone condizioni interne, situato nel cuore del vivace quartiere NoLo, una delle zone più richieste di Milano!
L'appartamento è composto da:
-Ingresso
-Soggiorno luminoso
-Cucina abitabile
-Due camere da letto spaziose
-Bagno finestrato
-Balcone
Soluzione ideale per coppie, giovani famiglie o come investimento!
Zona e collegamenti:
L'immobile si trova in Via Morandi 19, nel cuore di Nolo, quartiere dinamico e in continua crescita, ricco di locali, negozi e servizi di ogni tipo.
Ottimi i collegamenti con i mezzi pubblici:
-Metro M1 – Pasteur a pochi minuti a piedi
-Metro M2 – Loreto facilmente raggiungibile
-Linee bus 56, 62 e tram 1, 5, 33 nelle immediate vicinanze
Grazie alla posizione strategica, è possibile raggiungere il centro di Milano in pochi minuti.
Punti di forza:
-Zona NoLo, tra le più trendy e vivaci della città
-Piano alto con ascensore
-Cucina abitabile e balcone
-Ottimo stato di manutenzione
Un appartamento che unisce comfort, posizione e praticità in una delle aree più interessanti di Milano!
Per maggiori info e/o visionare l'immobile 327. 1814164 - Immobiliare Alesi.
Consistenze
| Descrizione | Superficie | Sup. comm. |
|---|---|---|
| Principali | ||
| Immobile - 3° piano | 97 Mq | 97 Mqc |
| Totale | 97 Mqc | |
